Der vil være boliger i flere størrelser, som passer til både enlige/singler og par. På den måde får man mulighed for at vælge en bolig, der passer til ens behov og ønsker. Efter planen vil de første boliger være klar i løbet af 2023.
Kvadratmetermål og pris kommer til at variere efter boligernes beliggenhed, men holdes alt andet lige inden for konceptrammerne. Alle tegninger er produceret af arkitekt, Karina Søgaard.
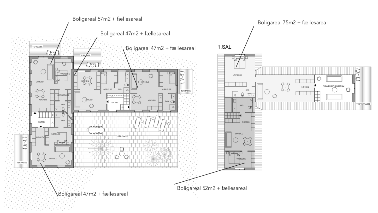
Forskelige typer bolig til forskellige behov
Vi arbejder både med renovering af eksisterende ejendomme og nybyggeri. Det gør vi for at skabe variation. For nogle er det vigtigt at bo i og omkring byen. Andre trives i mere rolige omgivelser og med naturen i baghaven.
I byerne er det planen at overtage og renovere eksisterende ejendom. En proces der gør, at vi forholdsvis hurtigt kan have noget klar til de aktionærer, der ønsker at bo i byerne. De nybyggede seniorboliger vil typisk få beliggenhed uden for byerne, hvor der er plads og større frihed til at bygge.
Se vejledende plantegninger fra arkitekt, Karina Søgaard
Boligtype 1
Eksisterende bolig
En eksisterende bolig opkøbes og ombygges til seniorfællesskab med individuelle lejligheder og fælles opholdsrum ude og inde.
En eksisterende boligejendom opkøbes og ombygges til individuelle seniorboliger med fællesarealer ude og inde. Der etableres elevator i bagtrappeskakt.
Vi arbejder ud fra 2 overordnede kriterier, når vi udvælger beliggenhed:
Vi vægter aktionærernes ønsker og behov meget højt. Alle aktionærer i Investering og Seniorbolig bliver ved tegning spurgt ind til individuelle boligønsker i forhold til placering og størrelse.
Vi placerer os, så vidt muligt i og omkring danske vækstbyer, som oplever stigende befolkning og pæn økonomisk vækst.
Boligerne vil blive indrettet med kvalitet og seniorernes behov for øje, samt et fuldt installeret køkken, bad og hvidevarer. Selvom de private rammer bliver lidt mindre, skal man stadig bo lækkert.
Efter et langt arbejdsliv skal seniorlivet selvfølgelig leves fuldt ud i samvær med andre. Derfor fokuserer Investering og Seniorbolig på at skabe gode og funktionelle fællesområder.
Fællesområderne har til formål, at danne grobund for nye relationer og skabe rammerne for en sjov og social hverdag. Man kan bl.a. forvente faciliteter som: udespa og sauna, billard, petanque, vinbar, loungeområde, motionsrum m.fl.
We use cookies on our website to give you the most relevant experience by remembering your preferences and repeat visits. By clicking “Accept All”, you consent to the use of ALL the cookies. However, you may visit "Cookie Settings" to provide a controlled consent.
This website uses cookies to improve your experience while you navigate through the website. Out of these, the cookies that are categorized as necessary are stored on your browser as they are essential for the working of basic functionalities of the website. We also use third-party cookies that help us analyze and understand how you use this website. These cookies will be stored in your browser only with your consent. You also have the option to opt-out of these cookies. But opting out of some of these cookies may affect your browsing experience.
Necessary cookies are absolutely essential for the website to function properly. These cookies ensure basic functionalities and security features of the website, anonymously.
Cookie
Varighed
Beskrivelse
cookielawinfo-checkbox-analytics
11 months
This cookie is set by GDPR Cookie Consent plugin. The cookie is used to store the user consent for the cookies in the category "Analytics".
cookielawinfo-checkbox-functional
11 months
The cookie is set by GDPR cookie consent to record the user consent for the cookies in the category "Functional".
cookielawinfo-checkbox-necessary
11 months
This cookie is set by GDPR Cookie Consent plugin. The cookies is used to store the user consent for the cookies in the category "Necessary".
cookielawinfo-checkbox-others
11 months
This cookie is set by GDPR Cookie Consent plugin. The cookie is used to store the user consent for the cookies in the category "Other.
cookielawinfo-checkbox-performance
11 months
This cookie is set by GDPR Cookie Consent plugin. The cookie is used to store the user consent for the cookies in the category "Performance".
viewed_cookie_policy
11 months
The cookie is set by the GDPR Cookie Consent plugin and is used to store whether or not user has consented to the use of cookies. It does not store any personal data.
Functional cookies help to perform certain functionalities like sharing the content of the website on social media platforms, collect feedbacks, and other third-party features.
Performance cookies are used to understand and analyze the key performance indexes of the website which helps in delivering a better user experience for the visitors.
Analytical cookies are used to understand how visitors interact with the website. These cookies help provide information on metrics the number of visitors, bounce rate, traffic source, etc.
Advertisement cookies are used to provide visitors with relevant ads and marketing campaigns. These cookies track visitors across websites and collect information to provide customized ads.